Rijmers Werkvoorbereiding
Het in Enschede gevestigde Rijmers Werkvoorbereiding biedt dienstverlening voor bedrijven in de interieurbouw. Vanuit de wens om voor zichzelf te beginnen, besloot eigenaar Dominic Rijmers zich per februari 2023 in te gaan zetten als freelance tekenaar/werkvoorbereider voor de interieurbouw. Hierbij biedt hij advies, technische tekeningen en projectbegeleiding aan voor bedrijven die behoefte hebben aan ondersteuning op de tekenkamer. Hij vertelde ons meer over zijn ervaringen met IronCAD, waar hij al sinds 2015 mee werkt.
Hout, staal en kunststof
Na mijn opleiding Industrieel Product Ontwerpen ben ik begonnen als Technisch Tekenaar in de interieurbouw. Na 7 jaar bij meerdere interieurbouwers te hebben gewerkt, heb ik veel kennis opgedaan van materialen zoals hout, staal en kunststof.
Ook heb ik veel ervaring opgedaan met het technisch ontwerpen van uiteenlopend maatwerk meubilair waarbij er verschillende materialen bij elkaar komen. Ik vind het leuk om dingen technisch te ontwerpen en deze van start tot eind werkelijkheid zien te worden. Voordat ik in 2015 met IronCAD ging werken, had ik veel met SolidWorks gewerkt. De omschakeling ging heel vlot en ben ik nu helemaal ingesteld op het werken met IronCAD.
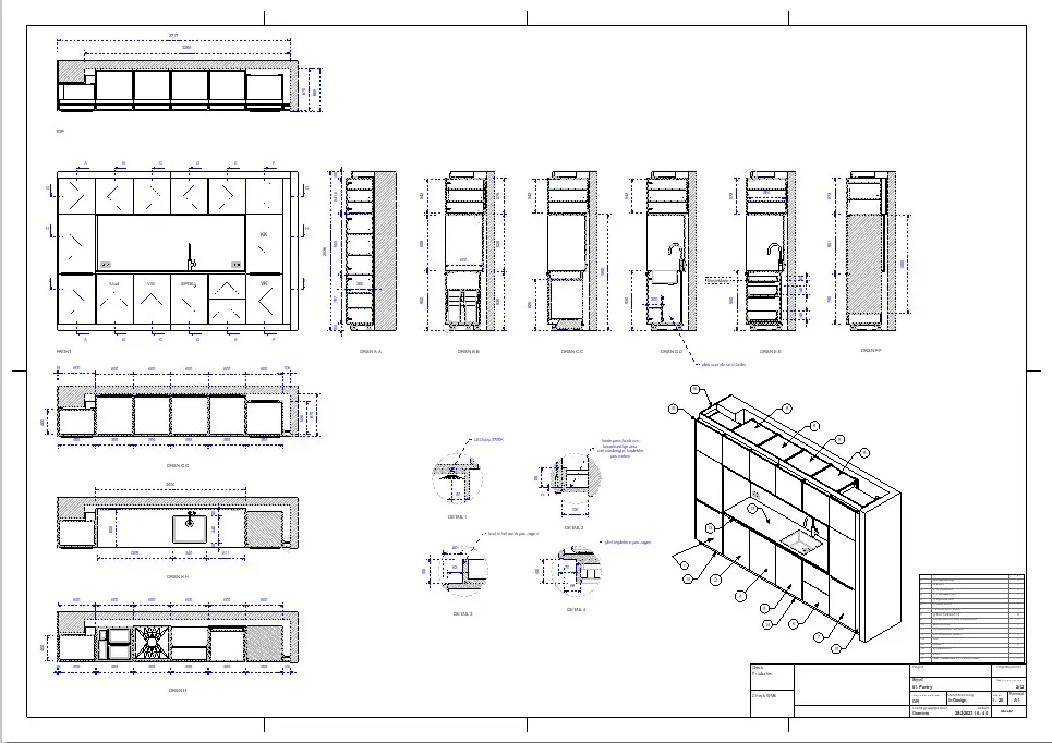
Divers maatwerk interieur
IronCAD gebruik ik om divers maatwerk interieur te kunnen tekenen. Een voordeel wat ik vind van het werken met IronCAD is dat het tekenen makkelijk en snel gebeurt. Al tijdens het 3D-tekenproces koppel ik de materiaaleigenschappen aan onderdelen met behulp van Para-Flex.
Met Para-Flex kan ik een groot gedeelte van de werkvoorbereiding eenvoudig genereren.
Continue optimalisatie
Het is fijn om met IronCAD te werken en met Dynfos, omdat het een leuk team is dat veel bezig is met het optimaliseren van het proces. Ze denken met je mee en helpen je als je ergens tegenaan loopt. Gezien zij ook contact hebben met het moederbedrijf zitten ze dicht op het vuur bij de laatste ontwikkelingen van de software. Hierdoor is er snel antwoord bij vragen.
